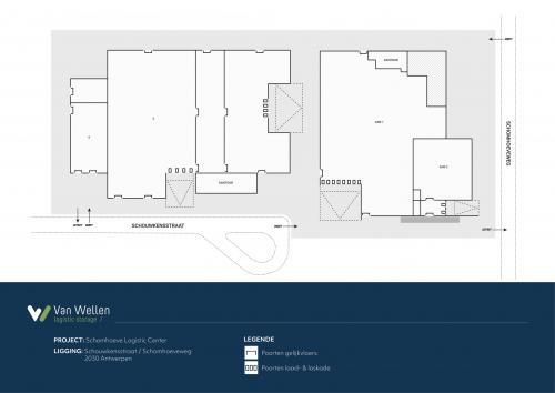
Schomhoeve Logistic Center
Schouwkensstraat / Schomhoeveweg, 2030 Antwerpen
Magazijnencomplex voor conventionele en gevaarlijke goederen of voor productie op een terrein van ruim 45.000 m².
Details
Dit complex bestaat uit 4 units van circa 2.000 m² - 13.000 m² en ongeveer 1.800 m² kantoorruimte in totaal.
Afstand en bereikbaarheid
Antwerpse haven, rechteroever. Slechts 1 kilometer van de autosnelweg.
Duurzaamheid
Onze huurders verbruiken de lokaal opgewekte groene energie die geproduceerd wordt op de daken van onze magazijnen.
Dit verlaagt niet alleen de CO2-uitstoot maar ook hun energiekosten.
Beschikbare units
Direct beschikbaar:
Magazijn 1c van +/- 13.390 m² met +/- 156 m² kantoorruimte op het gelijkvloers

8 laadkades, staalconstructie, 6m vrije hoogte (9m in de nok), LED verlichting



Het magazijn is niet apart te verkrijgen.
Ligging
Antwerpse haven, rechteroever
Schomhoeve Logistic Center
Schomhoeve Logistic Center
Schouwkensstraat / Schomhoeveweg
2030 Antwerpen
Belgium
Schomhoeve Logistic Center
Schomhoeve Logistic Center
Schouwkensstraat / Schomhoeveweg
2030 Antwerpen
België
Interesse of meer informatie gewenst?
Aarzel niet om ons te contacteren indien u een vraag of een opmerking heeft.
Wij helpen u met plezier verder!